Vibrating Screen Manufacturers
PZS High-Efficiency Vibrating Screen
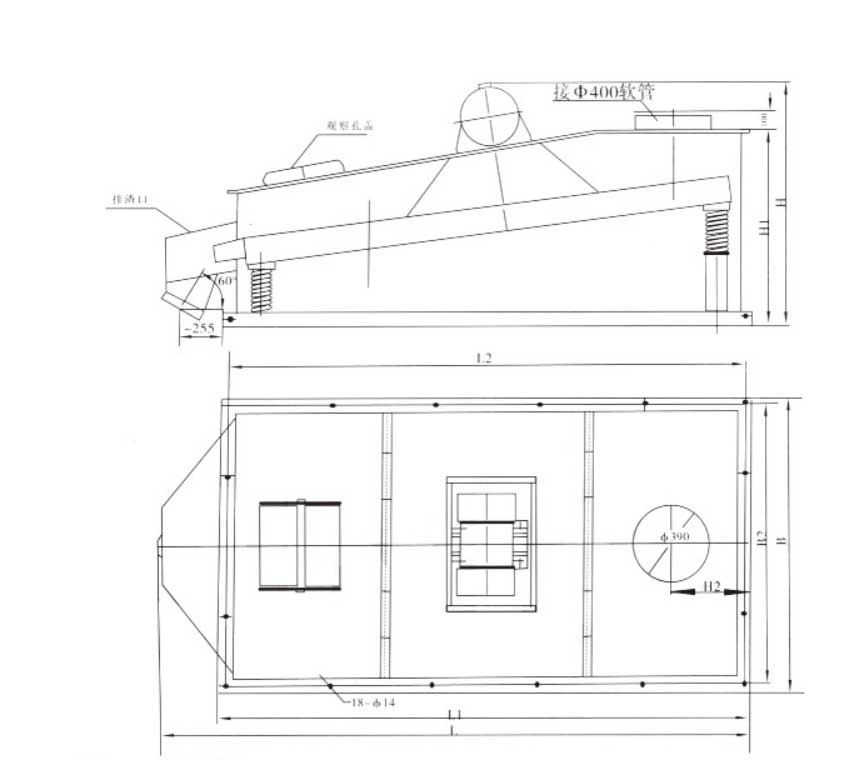
PZS series high-efficiency vibrating screen has a unique and novel structure, breaking the traditional design scheme, and it is an ideal screening equipment for screening before conveying equipment and packaging equipment.

PZS High Efficiency Vibrating Screen
PZS series high-efficiency vibrating screen has a unique and novel structure, breaking the traditional design scheme, and the vibration source directly drives part of the screen to vibrate; while the screen frame does not participate in the vibration, so that the weight of the whole machine is light, the power of the excitation source is small, and power is saved. More advanced new screening machinery.
Read More: Guide to the Best Vibrating Screen

Working Principle of PZS Vibrating Screen
The PZS high-efficiency vibrating screen adopts centrifugal rotation of eccentric block and rotor shaft, and the main machine realizes full vibration under the support of springs to achieve the purpose of screening materials. PZS mining vibrating screen solves the problems of low output, low precision, blocked holes and series of layers, and difficulty in changing screens in the screening process.
Application of PZS Vibrating Screen
PZS vibrating screen can be used for screening cement, lime, gypsum and similar dry powder materials, and it is an ideal screening equipment for screening before conveying equipment and packaging equipment.

Structural Features of PZS Vibrating Screen
- The machine is advanced in structure, small in size, light in weight, high in efficiency, low in noise, and stable in operation. It uses a vibrating motor to directly drive the screen to work.
- The PZS series high-efficiency vibrating screen adopts high-quality high-strength steel wire braided mesh, which is durable and wear-resistant, and is easy to replace and maintain. The screen mesh is 44mm or 55mm.
- Compared with the rotary screen, the power saving benefit is remarkable, and the screening efficiency is high.
Technical parameter of PZS Vibrating Screen
| Model | Yield t/n | Mesh size | Screen inclination | vibration frequency (times/minute) | Power (kw) |
| PZS-30 | 30 | 5×5 | 7° | 960 | 0.75 |
| PZS-60 | 60 | 5×5 | 7° | 960 | 0.75 |
| PZS-90 | 90 | 5×5 | 7° | 960 | 1.50 |
| PZS-120 | 120 | 5×5 | 7° | 960 | 1.50 |
| PZS-200 | 200 | 5×5 | 7° | 960 | 1.50 |
Read More: High-frequency vibrating screens wikipedia